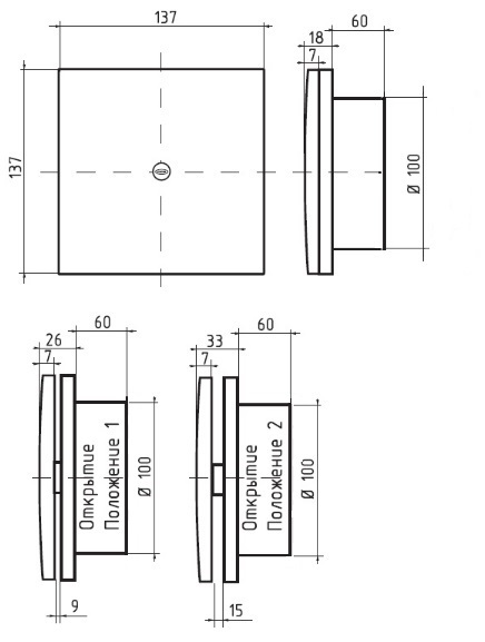
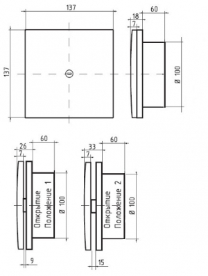
КИВ К1 предназначен для подачи уличного воздуха в помещения в системах вентиляции, преимущественно с принудительной вытяжкой (в жилых комнатах, в комнатах с постоянным нахождением людей; в помещениях с камином, в котельных, других помещениях, где нужен приток наружного воздуха). Применение клапана наиболее актуально в квартирах, где установлены пластиковые окна.
Внимание: длина утеплителя в трубе клапана составляет 20-25 см..









